페이지 정보

본문

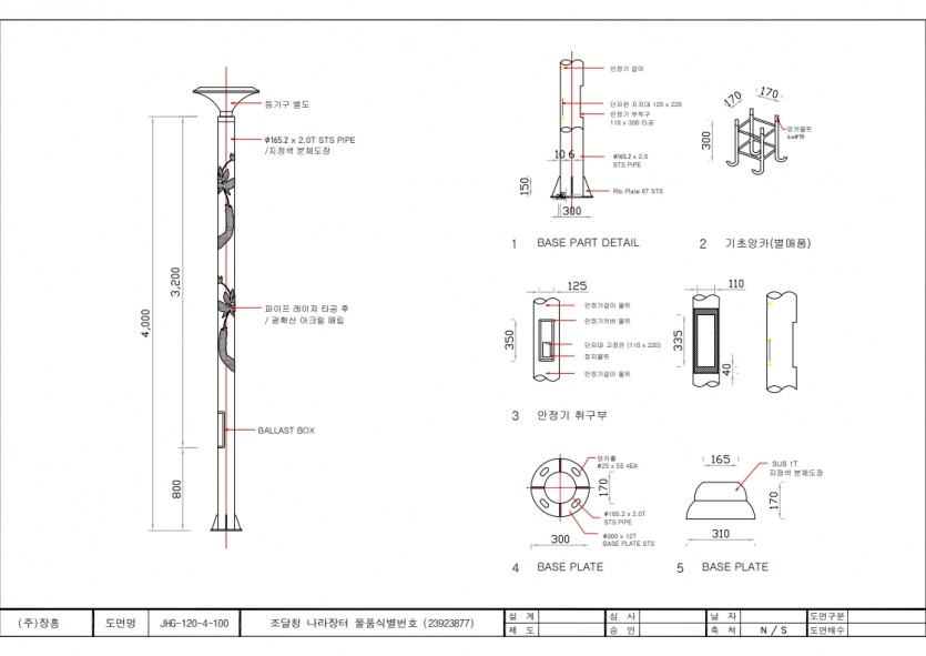
JHG-120-4-100,100W
물품식별번호 23923877
제품사양
소비전력
100W
규격
600*600*3900
용도
열주등
재질
스테인리스강,폴리카보네이트
정격전압
AC220
옵션/기타
형태:원기둥형
외형도

.