페이지 정보
본문
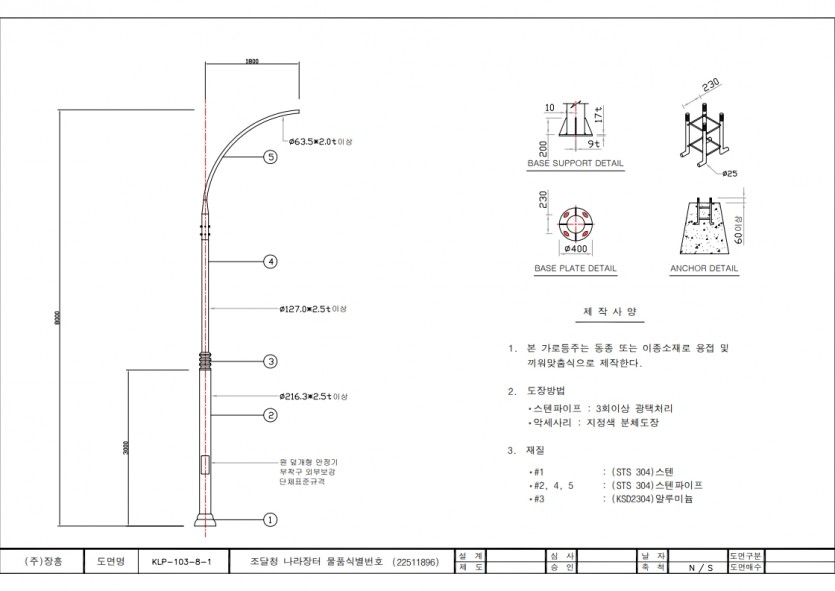
KLP-103-8-1, 8m, 1등용, 원2단형
물품식별번호 22511896
제품사양
상단두께
2.5mm
하단두께
2.5mm
암의길이
1800mm
암의단면모양
원형
크기(높이)
8m
모양
원2단형
옵션/기타
등기구, 베이스커버, 배너걸이, 안정기, 램프 별도
재질
STS304
암의재질
STS304
부착등수
1등용
표면처리방식
광택
상단지름
127mm
하단지름
216.3mm
외형도
.
